range of activity
performance
references
portrait
contact
download
directions
legal notices
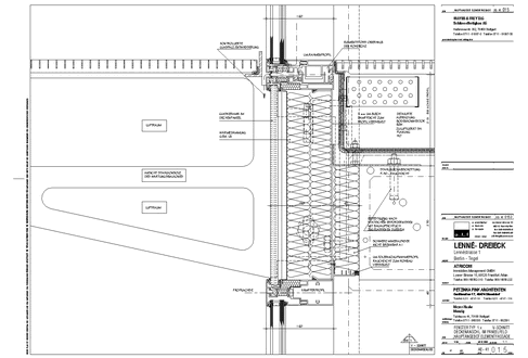
Lennéstrasse 1 reference detail V-section modulated facade connection ceiling
Lennéstrasse 1
reference detail V-section modulated facade connection ceiling
back next
back
startpage