range of activity
performance
references
portrait
contact
download
directions
legal notices
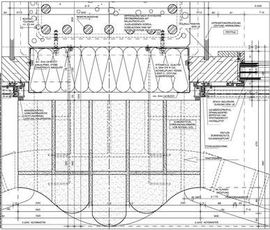
Bremer Landesbank, Bremen Main detail Clinker facade, horizontal section carcass connection
Bremer Landesbank,
Bremen
Main detail
Clinker facade, horizontal section carcass connection
back next
back
startseite