range of activity
performance
references
portrait
contact
download
directions
legal notices
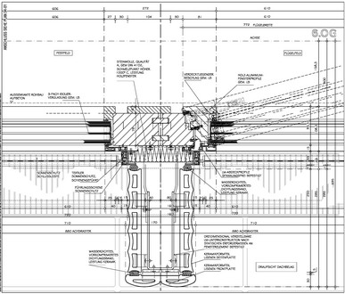
Bremer Landesbank, Bremen Main detail Horizontal section sixth floor, Connection from window element to ceramic lesene
Bremer Landesbank,
Bremen
Main detail
Horizontal section sixth floor, Connection from window element to ceramic lesene
back next
back
startseite